R6/3

Schnell & wendig

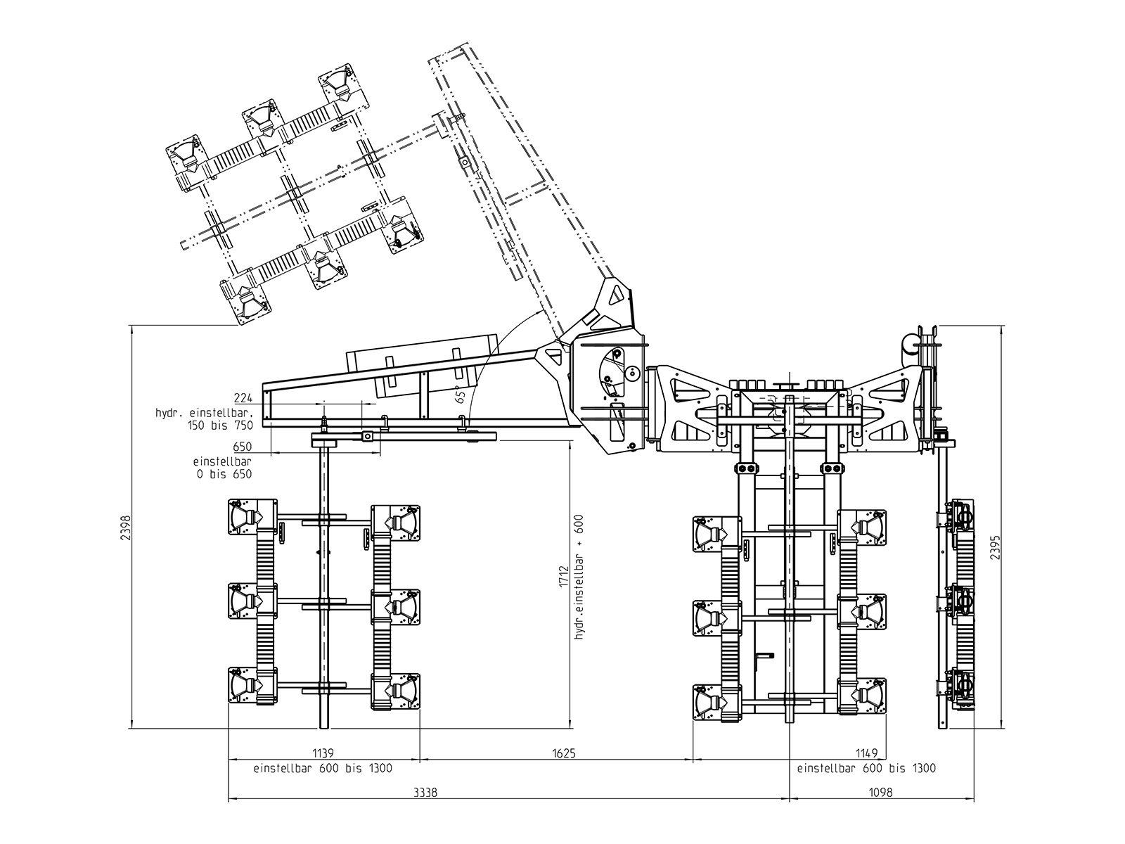
Mit diesem Weinbau-Mehrzeilengestänge für 3  Reihen bieten wir Ihnen eine echte Profimaschine. Die Ausleger werden für den Straßentransport seitlich geklappt und können für ein schnelles Vorgewende einzeln in die Höhe gehoben werden. Alle Düsenstäbe sind durch Federn gegen Bruch bei Kollisionen abgesichert. Für eine gesamte Höhenanpassung ist ein hydraulischer Lift verbaut.

Allgemeine Daten R6/3

• Luftleistung: 33.000 – 38.000 m³/h
• Düsenanzahl: 36
• Lüfterdurchmesser: 560 mm
• Abdriftminderung: 90 %
• 2-Gang-Getriebe

• Reihenanzahl: 3
• Maximale Kulturhöhe unterhalb Gestänge: 2,4 m
• Zeilenbreite: 1,7 – 2,6 m / 2,6 – 3,5 m

Die Maßangaben sind Richtwerte. Individuelle Faktoren wie Pflanzenvolumen, Fahrgeschwindigkeit und Geländebeschaffenheit können zu Abweichungen führen.

Weinbau

Beerenkulturen

Sprühgerät | Baureihe K | Tankmaterial GFK (1.500 Liter)

Sprühgerät

Typenbezeichnung

Tankvolumen

(Liter)

Pumpenleistung

(l/min – bar)

Kraftbedarf

bei maximaler

Drehzahl (kW)

Gesamtlänge

(mm)

Behälterbreite

(mm)

Gesamthöhe

(mm)

Leergewicht

(kg)

KR6/3/1500-150

1.500

150 – 50

15

3.910

1.230

2.790

1.680

Sprühgerät | Baureihe P | Tankmaterial PE (1.000 - 3.000 Liter)

Sprühgerät

Typenbezeichnung

Tankvolumen

(Liter)

Pumpenleistung

(l/min – bar)

Kraftbedarf

bei maximaler

Drehzahl (kW)

Gesamtlänge

(mm)

Behälterbreite

(mm)

Gesamthöhe

(mm)

Leergewicht

(kg)

PR6/3/1000-150

1.000

150 – 50

15

3.680

1.140

2.790

1.505

PR6/3/1500-150

1.500

150 – 50

15

4.060

1.300

2.790

1.565

PR6/3/2000-150

2.000

150 – 50

15

4.250

1.420

2.790

1.680

PR6/3/3000-150

3.000

150 – 50

15

4.906

1.697

2.790

2.175

Serienausstattung

Elektrische Fernbedienung mit Druckverstellung, Hauptschaltung für 2 Teilbreiten, Analog-Manometer

2-Gang-Getriebe für die perfekte Flügeldrehzahl

Hydraulische Höhenverstellung des
gesamten Gestänges

Düsenstäbe mit Anfahrsicherung per
Federvorspannung

Doppeldüsen mit Tropfstopp und Bajonett-Düsenkappe für eine schnelle werkzeuglose Düsenwartung und automatische Ausrichtung

ATR-Düseneinsätze nach Wahl

Kolbenmembranpumpe

Saugfilter mit Sperrventil für die Reinigung bei vollem Tank

Druckfilter aus Messing

Hochdruck-Venturi-Rührdüse

360°-Tankreinigungsdüse, bei P-Baureihe ab 1.000 Liter drei 360°-Düsen

Niederdruck-Strömungsrührwerk mit Abschaltung zur Sprühgeräte-Spülung ohne Verdünnung im Tank

Rührwerk abschaltbar

2 Tanköffnungen mit Tanksieb

Kurzdrehdeichsel, Unterlenkeranhängung mit Drehpunktverlagerung für spurgetreuen Nachlauf

Spülbehälter in der Front für bestes Fahrverhalten und Stützlast bei Bergauffahrt. Bei PE 600 – 800 Liter hinten verbaut.

Weitwinkelgelenkwelle

Gelenkwellenhalter

Zusatzausstattung

BEREIFUNG

Verschiedene Bereifungsvarianten
wählbar

Größe (Breite, Durchmesser)

Profiltyp

Tandem oder Einzelrad

PARABELFEDERUNG

Verbessertes und ruhigeres Fahrverhalten

VERSCHIEDENE ANHÄNGUNGEN

Ackerschienenanhängung

Kombideichsel (für Spritz-
Mulch-Kombination)

Zugmaulanhängung-Deichselschlepper bzw. geräteseitig sperrbar (für StVZO Italien)

K80 Kugelkopfanhängung

VERSCHIEDENE BREMSEN

40 km/h Zulassung möglich

Auflaufbremseinrichtung je nach Modell 25 oder 40 km/h

Druckluftbremsen je nach Modell 25 oder 40 km/h

Hydraulische Zweikreisbremsen je nach Modell 25 oder 40 km/h

DÜSEN

Dreifachdüsen mit Tropfstopp

INJEKTORDÜSEN

Verschiedene Antidriftdüsen
der Firma Agrotop und
Lechler konfigurierbar

LED-DÜSENBELEUCHTUNG

Für alle Gebläsetypen

Farbe blau

PERMANENTE FILTERREINIGUNG

Filterspülung des Saugfilters

NIRO-EINSPÜLUNG

Zum Einspülen von schwer
löslichen Mitteln im Tanksieb

Spült mit höherer Wassermenge
Pulver und Granulat
effektiver und schneller ein

Haben Sie weitere individuelle Wünsche? Sprechen Sie Ihren Fachhändler an!

Wir machen es möglich!

HYDRO MAX

Einspülschleuse Baureihe P

Die vollständig in die Tankform integrierte Einspülschleuse der Baureihen P1000 bis P3000 der neusten Generation ist ein absolutes Alleinstellungsmerkmal und Profi-Feature.

Einfach ausgeklappt befindet sich die Einfüllhöhe, je nach Modell und Bereifung, bei nur 90 cm, was den Komfort und Gesundheitsschutz auf ein ganz neues Niveau hebt.

  • 145 l/min Saugleistung
  • 25 l Fassungsvermögen bei P1000 – P2000
  • 35 l Fassungsvermögen bei P3000 – P4000

Steuerungsoptionen

  • Fernbedienung mit elektrischer Druckverstellung für 4-6 Teilbreiten
  • CleverSpray Regeleinrichtung optional mit Reihenerkennung für 2-8 Teilbreiten
  • ISOBUS Regeleinrichtung optional mit Reihenerkennung für 2-12 Teilbreiten

Mediathek

Broschüren zum Download

Maßblatt

Ihre Ansprechpartner bei Wanner Maschinenbau

Kontaktformular

Umbau unserer Telefonanlage

Liebe Kunden, liebe Partner,
am 17.04.2025 sind wir telefonisch nur Mobil erreichbar.
Der E-Mail-Verkehr ist uneingeschränkt.

Wir danken für Ihr Verständnis.

Profitieren Sie von unserer Herbstaktion!

Interessant? Nehmen Sie jetzt Kontakt mit unserem Vertrieb auf!